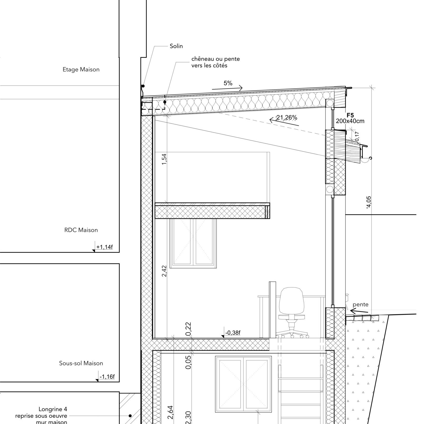
RECONSTRUCTION D'UNE EXTENSION
Démolition d’une partie de l’extension, reprise en sous-œuvre des fondations de la maison sur le côté mitoyen, création de fondations spéciales, création d’un sous-sol, isolation thermique et acoustique des parois, aménagement d’une mezzanine et modification de la toiture pour y intégrer un chien-assis.
Sèvres (92)
maîtrise d’ouvrage : privé
surface : 63 m2
montant de travaux : 250 000 €
statut : Livraison 2021
missions : Complète


